ホーム > 賃貸物件 > 一覧(店舗・事務所) > 刈谷市若松町一丁目 チョウシュンタワー 2階
刈谷市若松町一丁目 チョウシュンタワー 2階
| 交通 | JR東海道線・名鉄三河線「刈谷駅」徒歩約4分 |
|---|---|
| 物件種目 | 貸事務所 |
| 所在地 | 刈谷市若松町一丁目 |
| 家賃 | 507,408円(税込)/月額 |
| 管理費等 | 共益費:賃料に含む |
| その他一時金 | 保証料:契約時別途 (別途保証会社との保証委託契約が必要な場合があります) |
| 敷金/保証金 | 賃料の5ヶ月分 |
| 礼金 | なし |
| 駐車場 | 普通車(1台)14,300円(税込)/月額 (敷地内機械式駐車場上下2台分空きあり) |
| 保険等 | 別途要加入 |
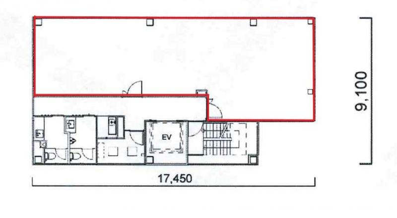
| 占有面積 | 95.33㎡(約28.83坪) |
| 建物構造 | 鉄骨造9階建 |
| 階 | 2階 |
| 築年月 | 2020年(令和2年)1月 |
| 契約期間 | 3年 (違約金:1年未満の解約の場合賃料6ヶ月分・2年未満の場合賃料3ヶ月分・3年未満の場合賃料1ヶ月分) |
| 入居日 | 相談 |
| 設備 | エレベーター、個別空調、機械警備、共用トイレ、喫煙スペースあり、リフレッシュスペースあり(屋上バルコニー) |
| 現況 | 空き |
| 引渡日 | 相談 |
| 備考 | ・現況優先 ・解約予告6ヶ月前 ・賃料、部屋分割 相談可 |
| その他 | 事務所賃料フリーレント6ヶ月 |










